SZYBKI KONTAKT
This is a captcha-picture. It is used to prevent mass-access by robots. (see: www.captcha.net) Wpisz tekst z obrazka w to pole (wielkość liter ma znaczenie)
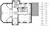
CENTRUM PARAFIALNE
CENTRUM PARAFIALNE
konstrukcja: murowana (pustaki ceramiczne gr. 30 cm i styropian gr. 10 cm)
powierzchnia użytkowa: 540,43 m2, w tym:
parter: 345,98 m2
poddasze: 194,45 m2
powierzchnia zabudowy: 439,42 m2
min. powierzchnia działki: 27,16 x 36,30 m
kubatura brutto: 2392,00 m3
wymiary zewnętrzne: 19,06 x 29,30 m
wysokość maksymalna: 8,63 m
kąt nachylenia dachu (stopnie): 22